location 1 145,00 $CAD +TPS/TVQ / M
Location d'espace commercial/Bureau

9930, Boul. Bourque #102, Sherbrooke (Brompton/Rock Forest/Saint-Élie/Deauville)




0
' x '
' x '

Fiche détaillée de la propriété2

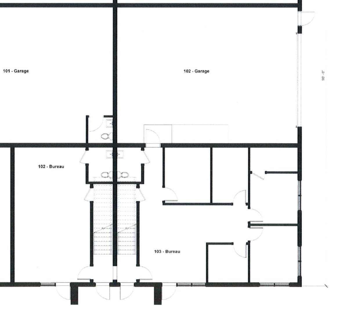
Disponible dès avril 2026, ce local de 550pi² au rez-de-chaussée propose un environnement de travail agréable avec fenestration abondante, salle de bain privée et accès direct à un garage de 1200pi² muni d'une porte de 16pieds. Situé à l'entrée de l'autoroute10, entre Sherbrooke et Magog, l'immeuble profite d'un achalandage de plus de 20000 véhicules par jour, assurant visibilité et accessibilité accrues. Idéal pour un professionnel ou une petite équipe.

Informations générales

Location d'espace commercial/Bureau

chambre(s)

salle(s) de bains

salle(s) d'eau

2019

pièce(s)

0,00 x 0,00 p / 0,00 x 0,00 m
(0,00 pc) / (0,00 mc)
0,00 x 0,00 p / 0,00 x 0,00 m
(0,00 pc) / (0,00 mc)

2026/05/01

Évaluation municipale


0 $
0 $


Dépenses

0 $
0 $

Caractéristiques - Extérieur

Municipalité

Municipal


Commercial, Industriel

Inclusions

Déneigement, pelouse, répartition de taxes municipales et scolaire.

Addenda

Ce bureau de 550 pi² propose un environnement lumineux et accueillant, idéal pour un professionnel ou une petite équipe souhaitant évoluer dans un espace flexible, moderne et bien conçu. Les grandes fenêtres assurent une belle luminosité naturelle et un cadre de travail agréable au quotidien. Une salle de bain complète est également intégrée à l'espace.
Situé stratégiquement à l'intersection de l'autoroute10, entre Sherbrooke et Magog, l'emplacement bénéficie d'une excellente visibilité grâce à un achalandage de plus de 20000 véhicules par jour. Le stationnement est abondant, tant pour votre équipe que pour les visiteurs.
Un garage de 1200 pi², accessible via l'immeuble, peut également être mis à votre disposition. Doté d'une porte de 16 pieds, il offre un espace pratique pour l'entreposage, la logistique ou des besoins spécifiques liés à vos activités.
D'autres options sont offertes dans l'immeuble, selon votre budget ou la taille de votre entreprise. Un local de 1200 pi², situé au 2e étage, peut être loué dans son ensemble au prix de 2200$ par mois (voir MLS 14541547), ou encore divisé en bureaux individuels : Bureau #1 : 995$/moisBureau #2 : 595$/mois -- Voir MLS 10424162Bureau #3 : 795$/moisBureau #4 : 795$/mois
Quelle que soit la taille de votre entreprise, ce bâtiment propose des solutions évolutives et professionnelles pour soutenir votre croissance.

Numéro de référence
27633387

PARTAGEZ CETTE PROPRIÉTÉ

Visitez cette propriété


Nous joindre : 819 820-8363 450 673-8363

Outils de calcul



Découvrez nos propriétés similaires